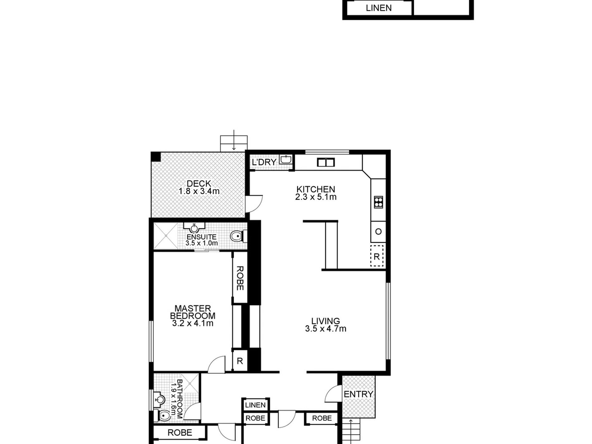
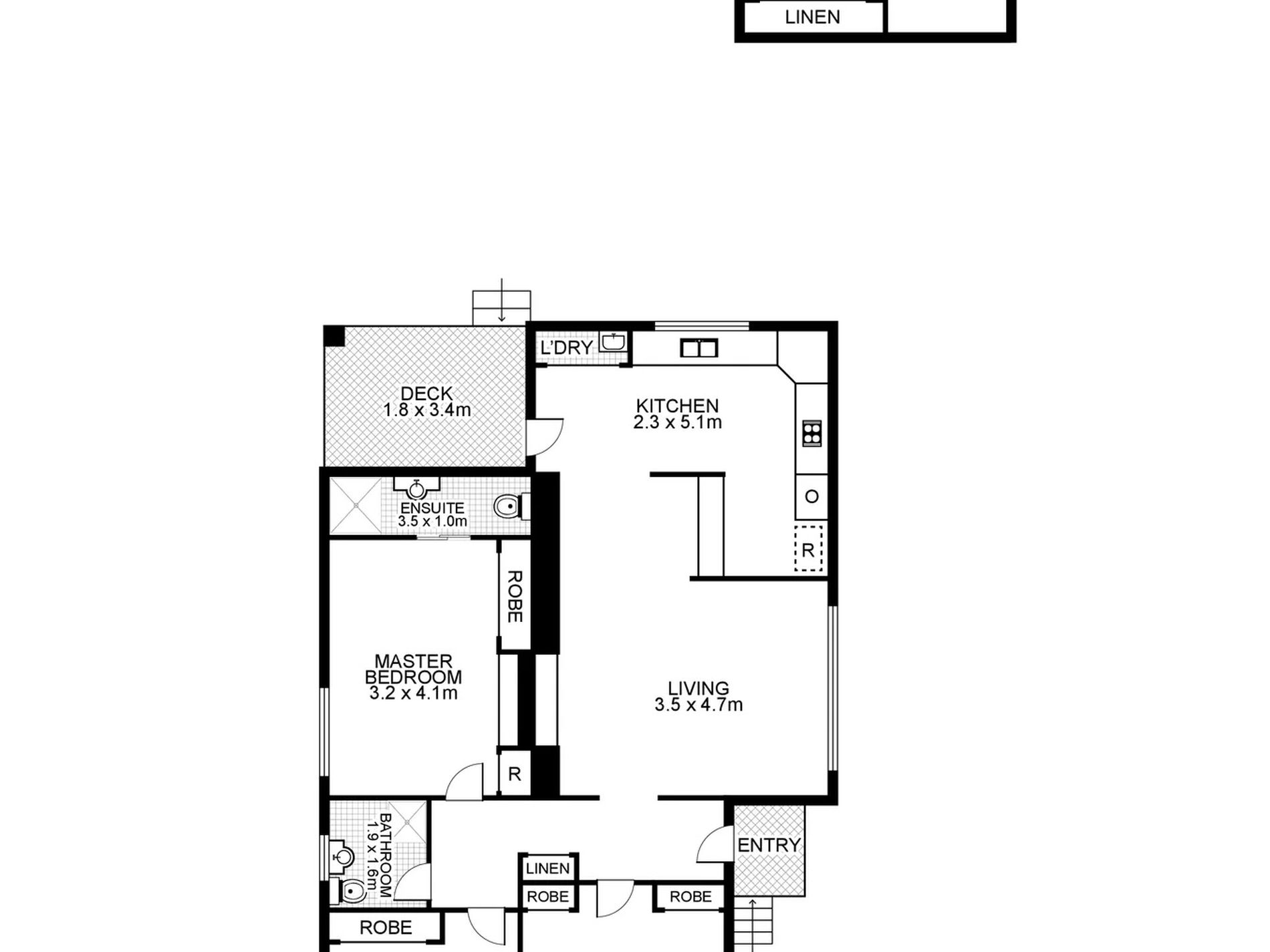
Welcome to your new home at 5 Leura Road, Auburn — a spacious three-bedroom residence offering exceptional flexibility, comfort, and everyday convenience.
Adding to its appeal is a separate room complete with a kitchenette and shower, ideal for a teenage retreat, or a private work-from-home space.
Having been a cherished family home for seven years, the property is now being lovingly refreshed, with freshly painted interior and a spruce-up, as it prepares to welcome its next happy family.
Positioned in a sought-after, wide and peaceful street, this well-presented home is designed for relaxed, easy living in a location that truly delivers. Light-filled interiors and a practical layout make it perfectly suited to families or professionals alike.
Enjoy unbeatable convenience with local schools just 250 metres away, neighbourhood shops 150 metres from your door, and public transport close by.
Property features include:
* Generous bedrooms with built-in wardrobes
* Master bedroom with private ensuite
* High ceilings and polished timber floors
* Spacious kitchen and multiple bathrooms
* Separate self-contained space for added flexibility
* Plenty of Room for 2+ cars
Our long-term tenant is moving on after seven happy years to begin a new chapter. Homes of this quality and versatility are increasingly rare in Auburn—this is a wonderful opportunity to secure a spacious, well-located home close to everything.
👉 Apply or register your interest:
https://snug.com/apply/ozwayrentals
Disclaimer: All information contained herein is gathered from sources we believe reliable. We have no reason to doubt its accuracy, however we cannot guarantee it.
Features
- Air Conditioning
- Reverse Cycle Air Conditioning
- Deck
- Fully Fenced
- Shed
- Built-in Wardrobes
- Floorboards





















