OPEN HOME THIS SATURDAY 10:00 - 10:15AM
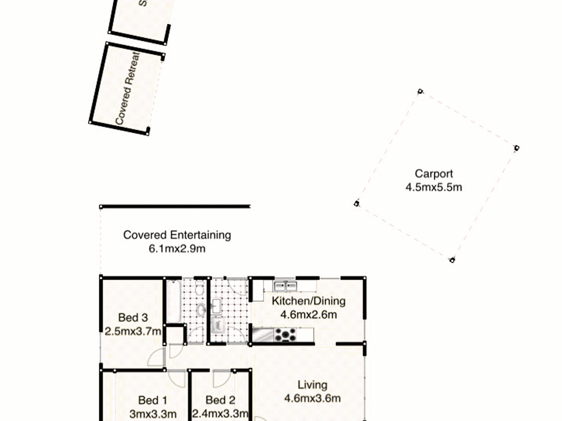
- 3 Generous sized bedrooms with built-ins
- Separate lounge/dining area
- Freshly painted throughout
- Upgraded kitchen
- Split system A/C
- Storage room
- Side access with carport
- Covered entertainment area
- Great size block
Features
- Split-System Air Conditioning















